In einem kernsanierten Mehrfamilienhaus mit insgesamt fünf Wohneinheiten entsteht bis zum Jahr 2027 moderner Wohnraum in energieeffizienter Bauweise. Das Gebäude wird energetisch auf dem Niveau eines KfW-70-Hauses realisiert und vereint damit zeitgemäßen Wohnkomfort mit nachhaltigen Standards.
Die angebotene Wohnung befindet sich im Obergeschoss und wird schlüsselfertig in hochwertiger Massivbauweise erstellt.
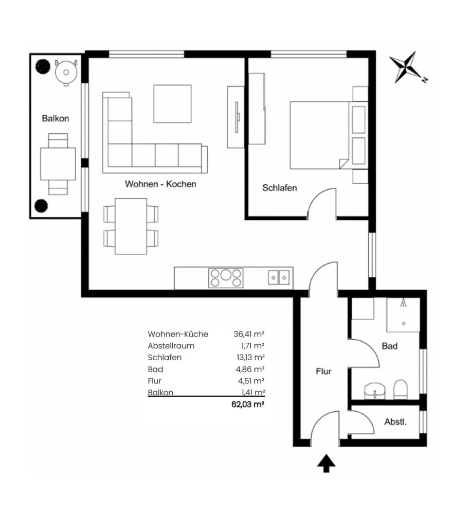
Mit einer Wohnfläche von ca. 61 m² handelt es sich um eine großzügig geschnittene 2-Zimmer-Wohnung, die durch ihre vielen Fenster besonders hell und freundlich wirkt.
62 m2 | 319.000 Euro
| Objekt ID | 728512 |
| Objekttyp | Wohnung |
| Lage | Zentral |
| Wohnfläche | 62 m² |
| Nutzfläche | 4 m² |
| Zimmer gesamt | 2 |
| Badezimmer | 1 |
| Schlafzimmer | 1 |
| Baujahr | 2026 |
| Stellplatz | Außenstellplatz 9.900 Euro |
| Fertigstellung | geplant Juni 2027 |
| Käuferprovision | 3,57 % vom Kaufpreis inkl. MwSt. |
Vereinbaren Sie einen Besichtigungstermin, wir freuen uns auf Sie!
Sie haben interesse?
Setzen Sie sich einfach mit uns in Verbindung - wir sind gerne für Sie da.




